网站首页
关于我们
产品中心
经典案例
新闻中心
联系我们
MENU
网站首页
关于我们
产品中心
经典案例
新闻中心
联系我们
产品中心
匠心 服务 创新 品质
首页
>
产品中心
产品中心
经典案例
>
钢筋混凝土防护密闭门
钢筋混凝土防护密闭门
钢结构防护密闭门
防护密闭屏蔽门与密闭屏蔽门
电控防护密闭门与密闭门
防护防火密闭门与防火密闭门
密闭观察窗
防爆波活门
密闭阀门
防护密闭封堵板
战时风水电产品
特种专用防护设备
>
钢筋混凝土活门槛单扇密闭门
产品中心
PRODUCTS CENTER
向下滚动
钢筋混凝土防护密闭门
钢结构防护密闭门
防护密闭屏蔽门与密闭屏蔽门
电控防护密闭门与密闭门
防护防火密闭门与防火密闭门
密闭观察窗
防爆波活门
密闭阀门
防护密闭封堵板
战时风水电产品
特种专用防护设备
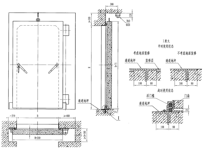
钢筋混凝土活门槛单扇密闭门
此类门的特点是平时不设门槛,地面平整,便于人员或车辆通行;战时快速设置门槛,以满足防护、密闭要求。
型号
门孔宽B
门孔高H
门扇厚δ
HM0716
700
1600
100
HM0820
800
2000
100
HM0920
900
2000
100
HM1020
1000
2000
100
HM1220
1200
2000
100
HM1320
1300
2000
100
HM1520
1500
2000
126
HM2020
2000
2000
126
上一条
下一条